Gli studenti dell'Università degli Studi di Udine studiano Villa Florio Maseri
Corso di Laurea Magistrale in Architettura dell'Università degli Studi di Udine
I progetti degli studenti
Nell’ambito dei corsi tenuti nel Laboratorio Integrato di Restauro Architettonico (a.a. 2023-2024, 2024-2025) gli studenti hanno affrontato il tema del restauro del complesso di Villa Florio Maseri a Persereano. Conforme all’iter progettuale il lavoro ha previsto il rilievo fotogrammetrico e laser scanner (modulo II- prof. Domenico Visentini); analisi dei materiali, diagnosi di degrado (modulo I – prof.ssa Alessandra Biasi); diagnosi del dissesto (modulo III- dott.ssa Elena Frattolin); interventi di restauro su superfici e consolidamento degli elementi strutturali (modulo I, II). In chiusura, è stato affrontato il tema della rifunzionalizzazione degli annessi rustici, nell’ottica di un mutuo scambio con le risorse del territorio.
A partire dall’indagine storica, supportata dalle fonti d’archivio, gli studenti hanno ricostruito e rappresentato le fasi realizzative del complesso segnalando il progressivo accorpamento alla villa delle barchesse e annessi agricoli (fig.5)

Analizzata l’articolazione interna del nucleo insediativo (villa, parco, corpi annessi, terreni agricoli di proprietà e contermini etc.) si sono indagate le sue potenziali riconversioni d’uso in chiave di interrelazione con le risorse disseminate nel territorio regionale (figg.1;2;3;4). Ciò nell’ottica della messa a punto di circuiti di fruizione integrata – ad includere risorse culturali (vedi il sistema delle ville), naturali (i diversi ambienti naturali), agricole (punti di produzione e vendita), enogastronomiche – al cui interno il nucleo della villa può svolgere un ruolo di promozione oltre che interconnessione, a vantaggio di una sua valorizzazione sotto molteplici profili. Di tutto rilievo in merito è la funzione della viabilità ciclabile e specificatamente nella Ciclovia Alpe Adria, fortemente attrattiva rispetto al turismo regionale ed extraregionale, che intercetta lo stesso nucleo di Persereano per proseguire poi in direzione di Aquileia e Grado. Ciò a prospettare l’evenienza di una prosecuzione del circuito via mare da Grado a Trieste (fig.3).


Entro dunque uno scenario territoriale allargato, le scelte progettuali volte alla ridefinizione delle destinazioni d’uso degli annessi rustici e, nei limiti consentiti, della stessa villa muovono dalla conoscenza analitica degli aspetti costruttivi e materici, nonché dello stato conservativo delle architetture presenti in sito (fig.18). Tale conoscenza sostanzia infatti il riconoscimento delle qualità da salvaguardare alla base di un fondato progetto di restauro che si confronta con il nodo, dirimente quanto complesso, dell’addizione del nuovo. Se le trasformazioni dei corpi annessi alla villa (si pensa ad eventi, attività di servizio alla villa, ristorazione, b&b, produzione e vendita prodotti agricoli etc.) (figg. 27;28;29;30;31;32) appaiono necessarie ai fini di assicurare nuova vita a fabbricati prossimi alla dismissione, è opportuno ricordare che questi partecipano coralmente, nelle diverse e anche modeste caratterizzazioni, all’identità storica del sito sollecitando una riflessione sui termini in cui affrontare oggi tale rapporto.


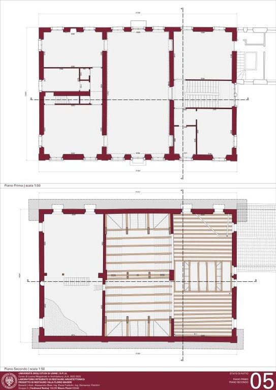
Le tavole presentate documentano taluni passaggi del percorso di conoscenza che dal rilievo (figg.6;7;8;9;10;11;12;13;14;15;16), all’indagine dei caratteri costruttivi e stato di degrado e dissesto (figg.19;20;21;22;23;26) conduce alle scelte di intervento e futura destinazione delle architetture presenti; scelte che richiedono uno sguardo colto e attento nei confronti della storia del sito e delle sue proiezioni al futuro su cui gli studenti con il contributo hanno inteso confrontarsi.


